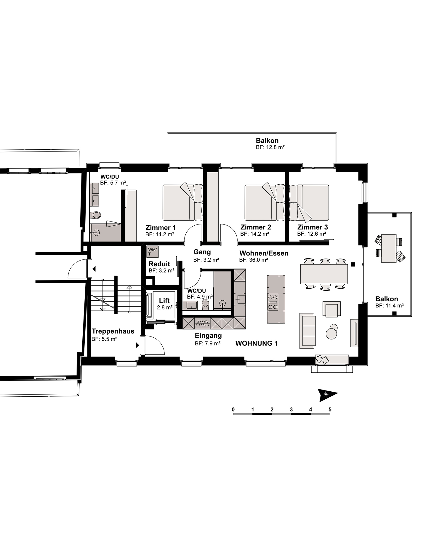
Wohnung
Ebene:
Anzahl Zimmer:
Wohnfläche BGF:
Balkon:
Keller:

Haus Vernela

Ebene

Wohnung

Zimmer

Wohnfläche BGF

Balkon

Keller

Preis

Status

1. OG

1 - Erstwohnung

4.5

129.5 m²

 24.2 m²

15.6 m²

auf Anfrage

Verfügbar